Explore Our Pool Designs in Dubbo
A Pool for all Occasions
Whether you have a spacious yard with plenty of room to splash around in a large swimming pool or a courtyard with room enough for a spa, explore our range at Dubbo Pool World. We offer an extensive range of pool designs, perfect for Dubbo families!
We're proud to supply and install Leisure Pools, which has a proven reputation for manufacturing high-quality fibreglass inground pools.
Just choose your design and colour and let us take care of the rest. We make the project a refreshing experience – from council approval and construction, right through to fencing, landscaping and paving.
If you’re looking for a pool for exercise, or for complete relaxation, we are have a design to suit.
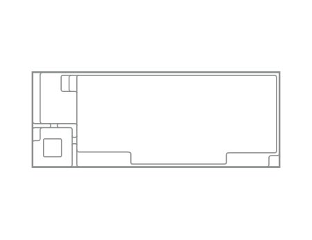
The Brampton Range
Here at Country Rubber & Foam, Pools & Spas in Tamworth, we sell a wide range of fibreglass pools to suit your taste, preferences and home aesthetic! The newest in our range is the Brampton; a modern, classy pool with many desirable features. Boasting a child safety ledge, a full-length bench seat, a non-slip entry/exit point and a spacious swimming area; this pool could be the perfect addition to your family home.
Dimensions
Measurements in metres and litres, measurements are estimates only.
| Name | Length | Width | Deep | Shallow | Litres |
|---|---|---|---|---|---|
| Brampton | 12.10 | 4.40 | 2.01 | 0.91 (910mm) | 70000 |
| Brampton | 11.20 | 4.40 | 2.01 | 1.01 | 64000 |
| Brampton | 10.10 | 4.40 | 2.01 | 1.11 | 58000 |
| Brampton | 9.20 | 4.40 | 2.01 | 1.21 | 52000 |
| Brampton | 8.20 | 4.40 | 2.01 | 1.31 | 46000 |
| Brampton | 7.20 | 4.40 | 1.93 | 1.31 | 40000 |
| Brampton | 6.20 | 4.40 | 1.83 | 1.31 | 34000 |
| Brampton | 5.20 | 4.40 | 1.73 | 1.31 | TBA |
The Brampton Range
Here at Country Rubber & Foam, Pools & Spas in Tamworth, we sell a wide range of fibreglass pools to suit your taste, preferences and home aesthetic! The newest in our range is the Brampton; a modern, classy pool with many desirable features. Boasting a child safety ledge, a full-length bench seat, a non-slip entry/exit point and a spacious swimming area; this pool could be the perfect addition to your family home.
Dimensions
Measurements in metres and litres, measurements are estimates only.
| Name | Length | Width | Deep | Shallow | Litres |
|---|---|---|---|---|---|
| Brampton | 12.10 | 4.40 | 2.01 | 0.91 (910mm) | 70000 |
| Brampton | 11.20 | 4.40 | 2.01 | 1.01 | 64000 |
| Brampton | 10.10 | 4.40 | 2.01 | 1.11 | 58000 |
| Brampton | 9.20 | 4.40 | 2.01 | 1.21 | 52000 |
| Brampton | 8.20 | 4.40 | 2.01 | 1.31 | 46000 |
| Brampton | 7.20 | 4.40 | 1.93 | 1.31 | 40000 |
| Brampton | 6.20 | 4.40 | 1.83 | 1.31 | 34000 |
| Brampton | 5.20 | 4.40 | 1.73 | 1.31 | TBA |
The Brampton Range
Here at Country Rubber & Foam, Pools & Spas in Tamworth, we sell a wide range of fibreglass pools to suit your taste, preferences and home aesthetic! The newest in our range is the Brampton; a modern, classy pool with many desirable features. Boasting a child safety ledge, a full-length bench seat, a non-slip entry/exit point and a spacious swimming area; this pool could be the perfect addition to your family home.
Dimensions
Measurements in metres and litres, measurements are estimates only.
| Name | Length | Width | Deep | Shallow | Litres |
|---|---|---|---|---|---|
| Brampton | 12.10 | 4.40 | 2.01 | 0.91 (910mm) | 70000 |
| Brampton | 11.20 | 4.40 | 2.01 | 1.01 | 64000 |
| Brampton | 10.10 | 4.40 | 2.01 | 1.11 | 58000 |
| Brampton | 9.20 | 4.40 | 2.01 | 1.21 | 52000 |
| Brampton | 8.20 | 4.40 | 2.01 | 1.31 | 46000 |
| Brampton | 7.20 | 4.40 | 1.93 | 1.31 | 40000 |
| Brampton | 6.20 | 4.40 | 1.83 | 1.31 | 34000 |
| Brampton | 5.20 | 4.40 | 1.73 | 1.31 | TBA |






















































